Pozemek č. 1 se prodává se stavebním povolením a projektem rodinného domu, který je možné změnit dle uvážení kupujícího. Nachází se v Resortu pod Brdy – Hodyně, jehož součástí a hlavní odlišností je mimořádný společný komunitní prostor se saunou, malým venkovním amfiteátrem, příjemným výčepem na posezení, biotopem ke koupání, dětským hřištěm a ohništěm na opékání.
Resort pod Brdy je lokalita pro 13 domů situovaná v okrajové části obce. Velkorysá parcela o ploše 1768 m2 nabízí dostatek prostoru pro moderní rodinný dům i krásnou zahradu. Pozemek je velmi mírně svažitý, což lze elegantně vyřešit dvojúrovňovým rodinným domem. Obec Hodyně není jen sympatickým městečkem, ale svou polohou v blízkosti brdských lesů je ideální lokalitou pro moderní rodinné bydlení v sousedství přírodního parku Hřebeny.
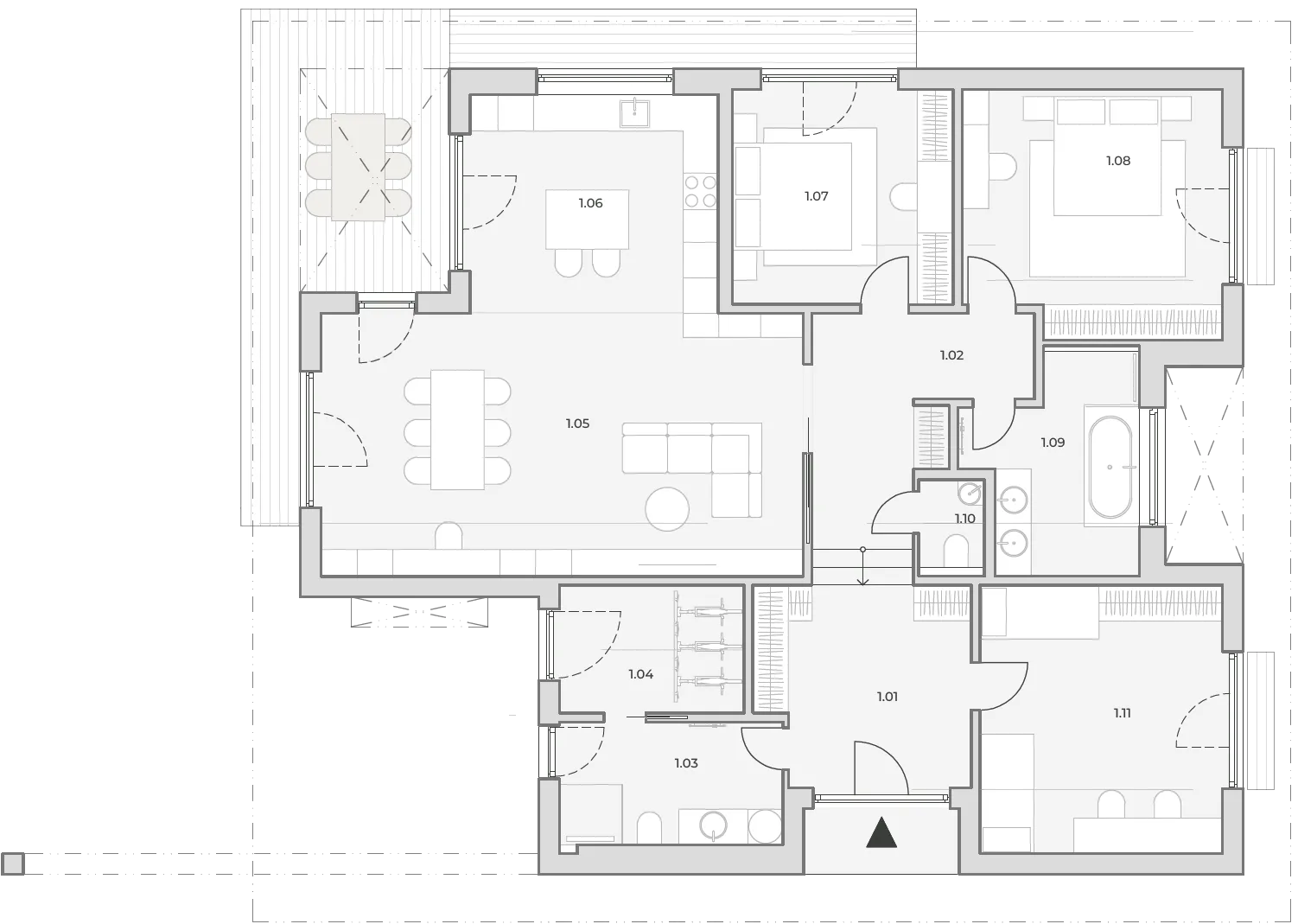
| 1.01 | PŘEDSÍŇ | 12,07 m2 |
| 1.02 | CHODBA | 11,62 m2 |
| 1.03 | KOUPELNA 1 | 7,89 m2 |
| 1.04 | TECHNICKÁ MÍSTNOST/KOLÁRNA | 6,81 m2 |
| 1.05 | OBÝVACÍ POKOJ | 36,20 m2 |
| 1.06 | KUCHYNĚ | 15,59 m2 |
| 1.07 | LOŽNICE 2 | 13,70 m2 |
| 1.08 | LOŽNICE 1 | 17,92 m2 |
| 1.09 | KOUPELNA 2 | 9,07 m2 |
| 1.10 | WC | 1,65 m2 |
| 1.11 | POKOJ | 18,87 m2 |
| Užitná plocha | 151,39 m2 | |
|---|---|---|
| Celkem | 151,39 m2 | |
| TERASA | 29,78 m2 | |
| Celkem | 29,78 m2 | |
|---|---|---|
+
+
+