Chalety Lipno

Túje 6

Cena parcely
15 420 262 Kč
Cena parcely s domem
27 726 372 Kč

DETAIL NEMOVITOSTI

Architekt:
Číslo a typ domu:
Užitná plocha:
169 m2
Velikost pozemku:
811 m2
Velikost zahrady:
m2
Lokalita:
Počet podlaží:
2
Dispozice:
4+kk
Parkovacích míst:
2
Architekt:
Číslo a typ domu:
Užitná plocha:
169 m2
Velikost pozemku:
811 m2
Velikost zahrady:
m2
Lokalita:
Počet podlaží:
2
Dispozice:
4+kk
Parkovacích míst:
2

1.NP

1.NP
1.1 ZÁDVEŘÍ 5,75 m2
1.2 HALA 5,06 m2
1.3 SPÍŽ 2,18 m2
1.4 OBÝVACÍ POKOJ S KUCHYNÍ 53,60 m2
1.5 LOŽNICE 15,84 m2
1.6 ŠATNA 5,40 m2
1.7 KOUPELNA 5,40 m2
1.8 WC 1,80 m2
1.9 TECHNICKÁ MÍSTNOST / SKLAD 14,43 m2
Půdorys 1.NP

2.NP

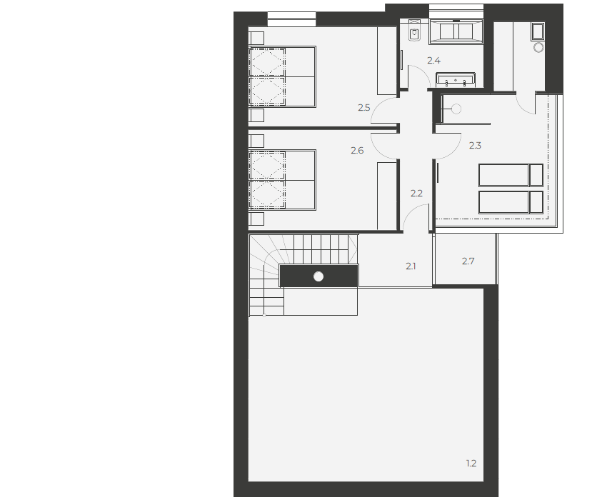
2.NP
2.1 GALERIE 3,94 m2
2.2 CHODBA 4,30 m2
2.3 WELLNESS 17,57 m2
2.4 KOUPELNA 5,59 m2
2.5 LOŽNICE 14,26 m2
2.6 LOŽNICE 14,26 m2
Půdorys 2.NP
Užitná plocha 169,38 m2

KE STAŽENÍ

Table Of Contents

+

let pro vás stavíme domy na míru

+

úspěšně dokončených projektů

+

rodin s námi našlo svůj nový domov

měsíců a bydlíte
ve svém

Kontaktujte nás

Začněte s námi cestu k novému domovu.

Nechte nám na sebe kontakt...

Ozve se vám přímo manažer prodeje.
Odesláním formuláře souhlasím se Zpracováním osobních údajů.

...nebo se nám ozvěte vy.

Miloš Snak
Manažer prodeje

DTI – Nebudu předlužený?

Ukazatel DTI (Debt to Income) je poměr výše celkového zadlužení žadatele o úvěr a výše jeho čistého ročního příjmu.

ČNB může nastavit, resp. doporučit poskytovatelům spotřebitelských úvěrů zajištěných obytnou nemovitostí horní hranici tohoto úvěrového ukazatele.

Závazná horní hranice ukazatele zadlužení DTI aktuálně není stanovena.

Aktuálně doporučená horní hranice činí 8násobek ročního příjmu.ČNB doporučuje poskytovatelům, aby vysoce obezřetně posuzovali žádosti o poskytnutí spotřebitelského úvěru, u nichž by úvěrový ukazatel DTI přesáhl tuto úroveň.

Zdroj: https://www.cnb.cz/cs/financni-stabilita/makroobezretnostni-politika/stanoveni-horni-hranice-uverovych-ukazatelu/dti/index.html

LTV – Neberu si příliš vysoký úvěr?

Ukazatel LTV (Loan to Value) představuje procentní poměr mezi výší úvěru a hodnotou zastavené nemovitosti.

ČNB může nastavit, resp. doporučit poskytovatelům spotřebitelských úvěrů zajištěných obytnou nemovitostí horní hranici tohoto úvěrového ukazatele.

Aktuálně nastavená horní hranice ukazatele LTV činí 80 % (90 % pro žadatele mladší 36 let pořizující si vlastní bydlení). Nad touto hranicí mohou banky poskytovat úvěry pouze na výjimku.

Aktuálně doporučená horní hranice činí 80 %. ČNB doporučuje poskytovatelům, aby vysoce obezřetně posuzovali žádosti o poskytnutí spotřebitelského úvěru, u nichž by úvěrový ukazatel LTV přesáhl tuto úroveň.

Zdroj: https://www.cnb.cz/cs/financni-stabilita/makroobezretnostni-politika/stanoveni-horni-hranice-uverovych-ukazatelu/ltv/index.html

Kontaktujte nás

Začněte s námi cestu k novému domovu.

Nechte nám na sebe kontakt...

Ozve se vám přímo manažer prodeje.
Odesláním formuláře souhlasím se Zpracováním osobních údajů.

...nebo se nám ozvěte vy.

Miloš Snak
Manažer prodeje